Progetti

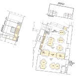
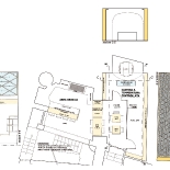
Un ristorante ad Anacapri

(Anacapri, 2007 - con arch. Attilio Renzulli)

Un progetto coordinato di interior design per un ristorante sito nel cuore del centro storico di Anacapri.
Tutti gli arredi sono pensati in legno di rovere sbiancato, vetro e acciaio, per conferire leggerezza agli ambienti, declinati in linee morbide e sinuose, per determinare uno spazio fluido e avvolgente.
Di particolare interesse in tal senso l’articolato bancone e le “fasce” che mettono in continuità tavoli, pavimento ed elementi di copertura, che alloggiano anche i corpi illuminanti.